Kleine Halle oder Lager zur Vermietung!
Ketsch
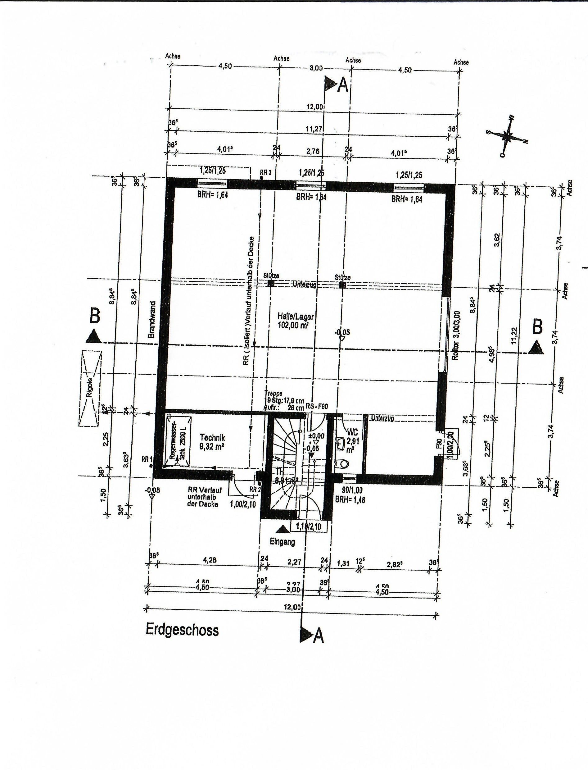
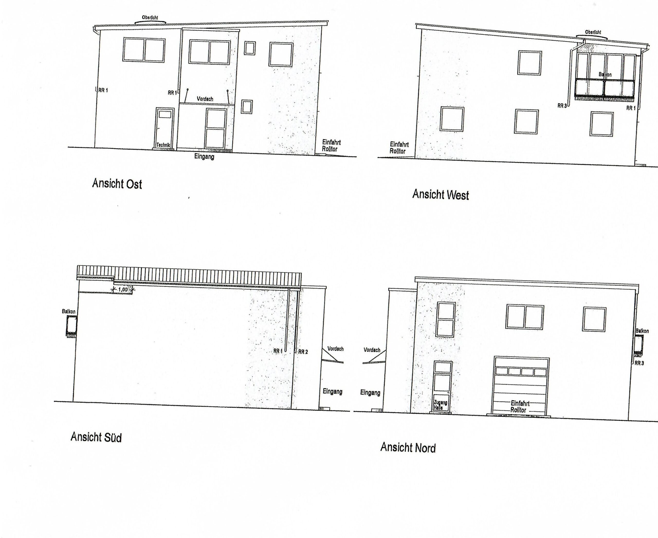
Die unbeheizte Halle befindet sich im Erdgeschoss eines Wohn-& Geschäftshauses (EG 1 Gewerbeeinheit, OG 1 Wohneinheit) aus dem Jahr 2022/2023. Sie eignet sich als Lager oder Abstellfläche und ist mit einem eigenem WC sowie einem separten Zugang ausgestattet. Die Zufahrt in die Halle erfolgt über ein elektrisches
Rolltor mit 3 m Breite und 2,80 m Höhe. Zum Objekt gehören 2 PKW-Außenstellplätze, die für insgesamt 50,00 Euro monatlich mitgemietet werden.
Die ausgewiesenen Mietpreise verstehen sich zzgl. 19% MwSt.
Haben wir Ihr Interesse geweckt? Dann freuen wir uns auf Ihre Anfrage.
Objektdetails
Ort: Ketsch
Nettomiete: 950,00 Euro
Kaution: 2.000,00 Euro
Baujahr: 2023
Nebenkosten: 50,00 Euro
Frei ab: 01.05.2026
Typ: Gewerbehalle/Lager
Nutzfläche: ca. 100,00 m²
Garage/Stellplatz: 2 PKW-Außenstellplätze zzgl. gesamt 50,00 Euro/Monat
Ausstattung
Lage
Zentrale Lage im Industriegebiet Ketsch mit bester Anbindung an die umliegenden Bundesstraßen und Autobahnen.








